TEI brake pad brake disc brake
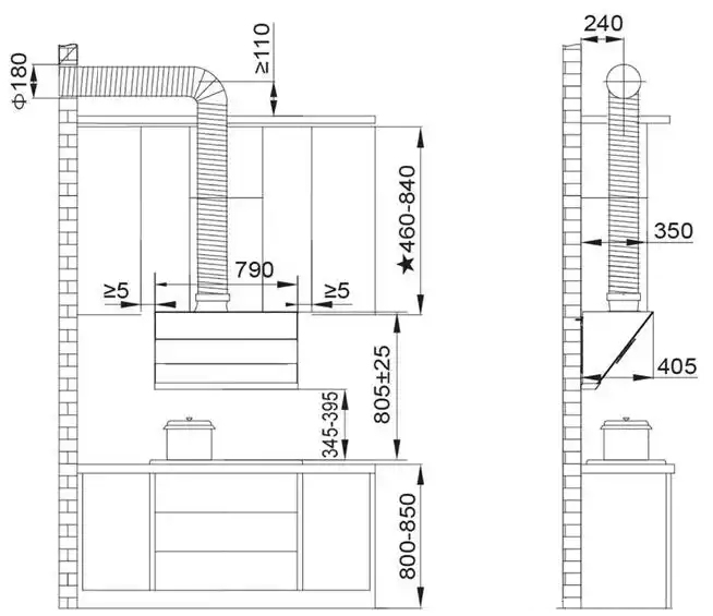
The standard installation height for range hoods varies depending on factors such as the range hood type and stove type. During installation, factors such as kitchen space, user height, and the range hood's specific performance should be considered, allowing for appropriate adjustments to achieve optimal fume extraction and user comfort. The following describes the standard installation heights for ceiling-mounted and side-mounted range hoods.
1. Installation Dimensions for Ceiling-mounted Range Hoods:
The ideal installation height for ceiling-mounted range hoods is generally between 65 and 75 cm from the stovetop. Installing them too low could cause them to hit your head and obstruct your view during cooking. Installing them too high could compromise fume extraction. For example, traditional Chinese ceiling-mounted range hoods have relatively low power consumption and weak suction, so an installation height of approximately 65 to 70 cm is recommended to ensure optimal fume capture. Some European-style ceiling-mounted range hoods offer higher power and a flatter design, allowing for a higher installation height of 70-75 cm to ensure suction while minimizing operating space.
2. Side-mounted range hood installation dimensions:
Side-mounted range hoods are generally located between 35-45 cm from the stovetop. These range hoods are located close to the stovetop, drawing fumes near their source. Installation heights below 35 cm may result in high temperatures due to proximity to the flame, shortening the range hood's lifespan and potentially interfering with cooking operations. Installation heights above 45 cm significantly reduce the range hood's extraction efficiency. For example, some side-mounted range hoods feature automatically opening and closing smoke dampers. These dampers function effectively at installation heights of around 35-40 cm, effectively blocking the spread of fumes.



